- 電磁流量計流量點進行檢測...
- 渦街流量計參數設置
- 渦輪流量計原理分類
- 渦街流量計尺寸的檢定
- 渦輪流量計設計理念
- 電磁流量計安裝位置的選擇...
- 電磁流量計檢測原理
- 渦輪流量計參數單位
- 渦街流量計工作原理
- 電磁流量計松緊程度
電 話:022-23284808 23284479
022-23280164 27224317
022-23282022 23282481
傳 真:022-23258505
地 址:天津市河西區桃園村大街1號、4號
LD智能型電磁流量計

一、產品特點:
|
●公稱通徑系列DN(mm)
管道式四氟襯里:
10,15,20,25,32,40,50,65,80,100,125
150,200,250,300,350,400.450,500,600
管道式橡膠襯里:
40,50,65,80,100,125,150,200,300
350,400,500,600,800,1000,1200
注:特殊規格可以定制
● 流動方向
正,反,凈流量,
量程比:150:1
重復性誤差:測量值的±0.1%
● 精度等級:管道式:0.5級,1.0級
● 被測介質溫度:
普通橡膠襯里:-20~+60℃
高溫橡膠襯里:-20~+90℃
聚四氟乙烯襯里:-30~+100℃
高溫型乙烯襯里:-30~+180℃
● 額定工作壓力:
管道式:DN10—DN65:≤2.5Mpa, DN80—DN150:≤1.6Mpa,
DN200—DN1200:≤1.0Mpa
● 流量測量范圍:
流量測量范圍對流速度范圍是0.3—15m/s
|
● 電導率范圍:
被測流體電導率≥5μs/cm
大多數以水為成份的介質,其導電率在200-800μs/cm范圍內,均可選用電磁流量;
● 輸出電流及負載電阻:
4~20mA全隔離負載電阻<750歐姆脈沖頻率0-1KHZ光電隔離OCT外接電源≤35V
導通時 集電極最大電流為25mA
● 電極材料:
含鉬不銹剛、鈦(Ti)、鉭(Ta)、哈氏合金(H)、鉑(Pt)或其他特殊電極材料
● 防護等級: 潛水型: IP68,其他型 IP65
● 供電電源:
85~265V, 45~63HZ
● 直管段長度:
管道式:上游≥5DN,下游≥2DN
● 連接方式:
流量計與配管之間均采用法蘭連接,法蘭連接尺寸應符合GB9119-88的規定。
● 防暴標志:mdllBT4
● 環境溫度: -25℃~+60℃
● 相對溫度:5%~95%
● 消耗總功率:小于20W
|
|
內徑(mm)
|
10
|
15
|
20
|
25
|
32
|
40
|
50
|
65
|
|
Qmin(m3/h)
Qmax(m3/h)
|
0.0848
3.39
|
0.1908
7.63
|
0.3391
13.56
|
0.5299
21.20
|
0.8681
34.73
|
1.3565
54.26
|
2.1195
84.78
|
3.5820
143.28
|
|
內徑(mm)
|
80
|
100
|
125
|
150
|
200
|
250
|
300
|
350
|
|
Qmin(m3/h)
Qmax(m3/h)
|
5.4259
217.04
|
8.478
339.12
|
13.2469
529.88
|
19.0755
763.02
|
33.912
1356.48
|
52.9875
2119.5
|
76.302
3o52.08
|
103.8555
4154.22
|
|
內徑(mm)
|
400
|
450
|
500
|
550
|
600
|
700
|
800
|
900
|
|
Qmin(m3/h)
Qmax(m3/h)
|
135.468
5425.96
|
171.6795
6867.18
|
211.95
8487
|
256.46
10258.38
|
305.208
12208.22
|
415.422
16616.88
|
542.592
21703.68
|
686.718
27468.82
|
|
內徑(mm)
|
1000
|
1100
|
1200
|
1400
|
1600
|
1800
|
2000
|
2200
|
|
Qmin(m3/h)
Qmax(m3/h)
|
847.80
33912
|
1025.838
41033.52
|
1220.832
48833.28
|
1660.688
66467.52
|
2170.368
86814.72
|
2746.872
109874.88
|
3391.20
135648
|
4103.352
164134.08
|
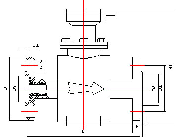
四、流量計的外型尺寸

-
2019-09-30電磁流量計流量點進行檢測
-
2019-09-17電磁流量計安裝位置的選擇
-
2019-08-28電磁流量計檢測原理
-
2019-08-14電磁流量計松緊程度
-
2019-08-09電磁流量計精度準確
-
2019-07-24電磁流量計計算差壓
-
2019-07-11電磁流量計設計理念
-
2019-07-02電磁流量計輸出功能
-
2019-06-28電磁流量計結構原理
-
2019-05-09電磁流量計調節要求








